Συμβουλές & επικοινωνία
Επικοινωνήστε
Ζητήστε προσφορά
Παραγγελία φυλλαδίων
Ζητήστε έγγραφα σχεδιασμού

Referenzen zu Verwaltungs- und Bürogebäuden
Lassen Sie sich inspirieren
In den folgenden Referenzen stellen wir Ihnen beispielhaft Verwaltungs- und Bürogebäude vor, in welchen hochwertige Novoferm Produkte eingebaut wurden. Teils ungewöhnlich, teils beeindruckend präsentiert sich darin das Spektrum der Einsatzmöglichkeiten als sehr breit.
Anforderungen und Lösungen
PORSCHE DESIGN TOWER STUTTGART
On 24 floors: Novoferm doors for maximum fire protection with style
NOVOPORTA PREMIO IN ALMOST ALL VARIANTS
In the home of Porsche, Porsche, Bülow AG, and Porsche Design are presenting a joint construction project for the first time. A special piece of architecture has risen to the sky in Stuttgart. The Porsche Design Tower is enthroned in a prime location on the Pragsattel ridge, the most important transportation hub in the northern part of Stuttgart. The 24-story building will house the new Porsche Center, a hotel, office space, and a restaurant.
This ambitious real estate project is a striking highlight of the surrounding area. The building is one of the tallest in Stuttgart and houses an exclusive upper-upscale hotel on its upper floors. The restaurant and bar on the tenth floor boast a large roof terrace and breathtaking views of Stuttgart's city center and Killesberg mountain. The building also offers spacious office space. For a construction project of this magnitude, the architectural standards for the design and furnishing details are particularly high. This applies not only to the design, but also and especially to the details of the execution and furnishings. Novoferm impressed with its expertise in high-quality steel doors for commercial construction and supplied the steel doors that were installed throughout the building. The company's products were particularly well-suited to meeting the high-rise's specific requirements, particularly in terms of fire protection, escape route technology, and complex solutions for pressurized stairwells. Close coordination between the trades involved was essential for this.
High-quality products for high demands
The client, Objektgesellschaft Design Tower Stuttgart mbH, a wholly-owned subsidiary of Bülow AG, opted to install the NovoPorta Premio steel door system. The system boasts a wide range of options and a consistently consistent door appearance, making it the preferred choice for commercial construction.
Fine-tuned settings
The requirements for fire protection and rescue technology presented a particular challenge. In the high-rise building, the stairwell is designed as an escape route, which is pressurized in the event of a fire to keep smoke out. The doors must be self-closing and precisely adjusted to ensure they can be opened easily in an emergency, despite overpressure. This finely tuned coordination between the pressure system and the doors was crucial to ensuring that all systems work together smoothly and safely – a task that Novoferm, thanks to its many years of experience and expertise, carried out with technical precision, thus ensuring the safety of the building's users.
On-site Installation and Adjustments
The installation of the door elements proved to be challenging. Some of the doors had to be manually lifted to the upper floors – a logistical challenge that the installation team overcame by using the internal elevators and requiring considerable physical effort. Another example of on-site adjustments is the subsequent change in the selection of frames for the public area of the hotel. The original plan called for flush frames with the wall for aesthetic reasons. However, the planned wall cladding and elevator door frames would have thwarted this straightforward and costly design, so the planning team considered the Novoferm consultant's suggestion to switch to standard steel doors with block frames to be a functional and sensible solution.
Successful Collaboration and Sophisticated Solutions
The close collaboration between Novoferm and the project participants, including architects and clients, was key to the success of this project. Jens Hiller, Project Manager at Bülow AG, is positive: "We were able to award a cost-effective contract for a high-quality product line of the steel doors specified in the tender at an early stage." Despite the high architectural standards and technical challenges, Novoferm demonstrated flexibility and a high level of planning and execution expertise. Novoferm was particularly able to demonstrate its strengths in dealing with the specific requirements for escape route technology in the high-rise building.
Facts and figures:
Project: | Porsche Design Tower Stuttgart |
Project Location:: | Stuttgart |
Client: | Objektgesellschaft Design Tower Stuttgart mbH |
Architect: | Bülow AG |
Completion:: | 2023 |
Requirements: | The architecturally sophisticated and multifunctional tower was to be versatile and meet the highest safety standards. The task was to support the concept with unobtrusive yet aesthetic fire doors. |
Novoferm Products: | – NovoPorta Premio steel doors system A total of 251 doors from T30/EI2 30 to T90/EI2 90, also available as RS and in larger formats, as well as with special thermal and sound insulation requirements – NovoPorta Clean ER-1 Very high stability and resistance, especially under atmospheric conditions or special hygiene regulations |
THE NOVOFERM SOLUTIONS
With its attractive thick rebate and many other design features, it also cuts a fine figure in offices. Novoferm supplied a total of 221 T30/EI 30 doors, which are distributed throughout the building. In addition, ten T90/EI 90 doors and 14 multi-purpose doors were installed.
They were used in various areas, from underground level 3 to the ground floor, as well as on the 11th and 24th floors and on the roof. The fire doors were installed throughout the building.
Almost all NovoPorta Premio variants were installed in the Porsche Design Tower. High-quality overhead door closers and elegant stainless steel handle sets were also used throughout. Individual doors in the basements were also equipped with automated swing-door operators, while others were fitted with access control and additional security contacts. Furthermore, doors were equipped with anti-panic hardware in accordance with DIN EN 1125 and a matching escape route control system.
Armin Wetzel, Novoferm Sales Baden-Württemberg, sees the company's expertise in fire protection as a major advantage in the collaboration: "The correct positioning of fire doors facing the escape stairwell requires extensive knowledge and experience. Thanks to our expertise, we were able to handle this sensitive task responsibly." Novoferm impressed both the architect and the client with the high quality, functionality, and attractive design of its door solutions.
WERKSVIERTEL IN MÜNCHEN
BRANDSCHUTZ IM SPEKTAKULÄREN WAHRZEICHEN MIT WEITBLICK: WERK 4
BRANDSCHUTZ IM SPEKTAKULÄREN WAHRZEICHEN MIT WEITBLICK: WERK 4
Zugspitze, Olympiapark und Frauenkirche im 360-Grad-Rundblick – diese atemberaubende Aussicht kann man ab 2025 in München von der Dachterrasse des Werk 4 mitten im Werksviertel am Ostbahnhof genießen. Als bislang höchstes Hotel der Stadt und multifunktionales Gebäude ist es ein echter architektonischer Blickfang. In diesem neu definiert, wurden unterschiedliche Türen von Novoferm verbaut.
Ehemalige Kartoffelsilos
Mit dem 86 Meter hohen Werk 4 ist auf einem alten Kartoffelsilo des Lebensmittelherstellers Pfanni eines der spektakulärsten Gebäude Münchens entstanden. Das Münchner Planungsbüro Steidle Architekten hat die Bausubstanz des Bestands gekonnt in das neue Gebäudekonzept integriert und weiterentwickelt. Das insgesamt knapp 39.000 Quadratmeter große Areal des Werksviertels am Münchner Ostbahnhof steht für Innovation, Modernität und Lebensqualität und wurde im Jahr 2023 mit dem Deutschen Städtebaupreis ausgezeichnet.
Vielseitige Nutzung:
Kletterhalle, Hostel, Hotel
Das Werk 4 setzt nicht nur durch seine Größe, sondern auch durch die dunkle Fassade und die markante Auskragung in der Gebäudemitte ein klares Statement – multifunktional, kühn, international. Auch konstruktiv ist es ein spezielles Gebäude. Der Bestandsbau umfasste ursprünglich drei Silos, von denen aus technischen und wirtschaftlichen Gründen nur eines erhalten blieb. In diesem rund 30 Meter hohen Speicher befindet sich seit Ende der 90er-Jahre eine Kletterhalle, die nun um eine Outdoor-Kletterwand erweitert wurde. „Das Silo ist statisch so stabil, dass wir es als Sockel für einen achtgeschossigen Aufbau nutzen konnten. Es bildet nun den südlichen Teil des Hochhauses von Werk 4“, erklärt Stefan Kissling von Steidle Architekten. Der neu entstandene Anbau von Werk 4 besitzt im vorderen Teil 25 Geschosse und auf halber Höhe eine zweigeschossige Auskragung. Bewusst wurde eine Mischung aus einfachen und gehobenen Unterkünften gewählt. So befindet sich in den unteren acht Geschossen die Hostelkette Wombat‘s mit 500 Betten, darüber, in den Stockwerken neun bis 24 haben Adina Hotels 234 Apartments im Vier-Sterne-Bereich eröffnet – inklusive Pool und Spa-Bereich. In der 14. Etage befindet sich das australische Restaurant Fitzroy, von dem aus Gäste den spektakulären Ausblick ebenso genießen können wie von der darüberliegenden Terrasse. Eine weitere Attraktion ist die Roof Top Bar im 25. Stock, deren Eröffnung für 2025 geplant ist.
NovoPorta Premio – Türen für alle Fälle
Wie so oft bei innovativen Bauprojekten fiel die Wahl auf Novoferm, als es darum ging, Türen in verschiedener Größe und Ausstattung für die diversen Etagen und Nutzungsbereiche des Werkes 4 zu definieren. „Türen spielen eine entscheidende Rolle für die Funktionalität, Sicherheit und Ästhetik eines Gebäudes. Novoferm-Türen vereinen all diese Aspekte, indem sie nicht nur Schutz vor Feuer und Rauch bieten, sondern durch ihr ansprechendes Design auch zur optischen Qualität der Umgebung beitragen. Ihre Benutzerfreundlichkeit und Langlebigkeit verbessern zudem die Effizienz im täglichen Betrieb“, so Stefan Kissling. Insgesamt 341 Stahltüren der Serie NovoPorta Premio, u.a. mit unterschiedlichen Verglasungen und Feuerwiderstandklassen mit und ohne Rauchschutz-Anforderung, davon einige auch mit barrierefreien Drehflügelantrieben, wurden zwischen 2019 und 2022 auf den Fluren und Zugängen eingebaut. Zur Schaffung maximaler Transparenz wurden an einzelnen Stellen auch zusätzlich Novo-Fire T30 Aluminium-Rohrrahmentüren mit großflächigen Verglasungen und leicht beweglichen Freilauftürschließern montiert.
Innovative Türlösungen für jedes Stockwerk
Die größten Herausforderungen bei dem Projekt beschreibt Roland Bartl, Produktmanager bei Novoferm für den Bereich Türen und Zargen: „Die Baustellenlogistik ist entscheidend! Mit Ausnahme der Technikbereiche lieferten und montierten wir in jedem Geschoss durchschnittlich neun Türen, die sich in allen Etagen an der gleichen Stelle und in der gleichen Einbausituation befanden.“ Da die Geschosse ganz unterschiedlich belegt waren, mussten die Lieferung und diese Bedingungen hat unser Montageteam gut gemeistert“, ergänzt Roland Bartl.
Entworfen wurde das Werk 4 von Johannes Ernst, Chefplaner des Werksviertels und Geschäftsführer des Architekturbüros Steidle Architekten. Für die Architekten waren die Integration des alten Kartoffelsilos und die Kombination von alter und neuer Bausubstanz Herausforderung und Möglichkeit zugleich.
Daten und Fakten:
Projekt: | Munich Werk 4 |
Projektort: | München |
Bauherr: | Otec GmbH München |
Bauleitung: | Hochtief Infrastructure, München |
Architektur: | Steidle Architekten, München |
Ausführendes Unternehmen: | HOCHTIEF Infrastructure GmbH, München |
Eröffnung: | Mai 2022 |
Anforderungsprofil: | Integration der Brandschutztüren in das gestalterische Gesamtkonzept, Zuverlässigkeit der Produkte, Qualität in Verbindung mit Komfort, Design und Transparenz, Unterstützung der Barrierefreiheit |
Novoferm-Produkte: | Rohrrahmentüren aus Aluminium des Systems NovoFire® Stahltüren System NovoPorta Premio – Mehrzwecktüren |
DIE NOVOFERM LÖSUNGEN
Geschäftsleute und Touristen, aber auch junge Backpacker aus aller Welt. Sie treffen sich im Werksviertel, begegnen Münchnern, die zum Sport in die Kletterhalle kommen, hier einkaufen und ausgehen.
„Besonders stolz sind wir auf unsere Beteiligung an einem der markantesten Gebäude des ehemaligen Industrieviertels: dem Werk 4“, resümiert Roland Bartl.
Es galt die Vorgaben des Architekturbüros an Design und Funktionalität der Türen umzusetzen und an die jeweilige Innenarchitektur anzupassen.
So sollten die Türen in den vielen Bereichen des Hotels, z.B. zu den Aufzügen oder in der Hotellobby, immer offen stehen und in den eigens dafür geplanten Wandnischen „verschwinden“. Um die Türen offen zu halten, setzte Novoferm verdeckt angeordnete Haftmagnete und Obentürschließer mit integrierten Feststellanlagen ein, die möglichst unauffällig verbaut werden mussten.
Zudem wurde ein Großteil der Türen bauseitig mit einem digitalen Zutrittskontroll-System ausgestattet. In den oberen Geschossen des Hotels erhielten die Novoferm-Türen elektronische Türbeschläge mehrerer Fabrikate, welche explizit auf die Wünsche der Kunden abgestimmt wurden.
Munich Urban Colab
BRANDSCHUTZELEMENTE IN DIE ARCHITEKTUR INTEGRIERT
MEHR BRANDSCHUTZ MIT NOVOFERM
Das Gründer- und Innovationszentrum ist eine Initiative der UnternehmerTUM GmbH und der Landeshauptstadt München, die ihre Kräfte unter einem Dach bündeln. Das Gebäude wurde von Steidle Architekten entworfen und von Hochtief im Rahmen eines Realisierungswettbewerb im PPPVerfahren gebaut. Wichtig war den Beteiligten die gestalterische Einbindung notwendiger Sicherheitselemente wie die Brandschutztüren von Novoferm.
Auf über 11.000 Quadratmetern entstanden mitten in der Münchener Stadt Büroräume, Co-Working-Spaces, Veranstaltungs- und Seminarräume, Living-Labs und eine Hightech-Prototypenwerkstatt. Für entspannte Begegnungen gibt es ein Café, zwei Wintergärten sowie einen Sport- und Fitnessraum. Durch das zentrale, zweigeschossige Foyer mit dem Auditorium und dem Café im Erdgeschoss wurde in Verbindung mit dem Seminarbereich im ersten Obergeschoss ein vielfältiger und flexibel nutzbarer Eventbereich geschaffen.
TÜREN UND WÄNDE BILDEN EINE EINHEIT
Beim Munich Urban Colab wurden unter anderem zehn NovoPorta Premio Stahlblechtüren in T90/ EI2 90, 55 NovoPorta Premio Stahlblechtüren T30/ EI2 30 und vier Mehrzweck-Stahlblechtüren verbaut. Novoferm überzeugte bei diesem Objekt durch individuell zugeschnittene, ganzheitliche Objekt- sowie innovative Detaillösungen. Wichtig war den Architekten, dass die Türen in den Büros im geöffneten Zustand mit den Wänden eine Einheit bilden und optisch möglichst unauffällig sind. Deshalb wurden die Türen zur Zufriedenheit von Bauherrn und Planern auch so ausgeführt, dass sie im geöffneten Zustand bündig mit den Wänden sind. „NovoPorta Premio“ zeichnet sich durch seine besonderen technischen und gestalterischen Eigenschaften aus. Die 1- und 2-flügeligen Feuerschutztüren aus Stahl eignen sich für den Innen- oder Außeneinsatz. Sie sind feuerbeständig geprüft nach EN 1634-1 und bauaufsichtlich zugelassen nach DIN 4102 oder nach Europäisch Technischer Bewertung ETA-17/0443. Die dreiseitig gefälzten Türblätter in formschöner Dickfalz-Optik sind 64 mm stark, bei standardmäßig stabilen Türblechdicken von 1,0 mm (optional auch in 1,5 mm). Türblätter und Zargen werden verzinkt und grundiert (pulverbeschichtet), serienmäßig im ansprechenden Verkehrsweiß, ähnlich RAL 9016 – auf Wunsch aber auch in RAL nach Wahl verbaut.
EASYFIT-SYSTEM VEREINFACHT MONTAGE
Der Einbau der Brandschutztüren erfolgte teilweise auch mit dem EasyFit-System, welches bereits ab Werk eine Zargenhinterfüllung mit Spezial-Aufschäumern beinhaltet. Hierbei werden in die Zarge bereits werkseitig Streifen aus intumeszierendem Brandschutzmaterial eingebracht. Es expandiert ab 200 °C bis auf das 10- bis 40-fache des ursprünglichen Volumens und bleibt dabei extrem formstabil. Bei Feuer dehnen sich diese Streifen so aus, dass der Zwischenraum zwischen Zarge und Wand zuverlässig abgedichtet wird. Damit ist eine 30-minütige Feuerwiderstandszeit gewährleistet. EasyFit ist geprüft nach EN 1634 und bauaufsichtlich zugelassen. Das System macht die Montage unabhängig von zusätzlichen Materialien und Vorbereitungsaufwendungen, Umgebungstemperaturen, Trocknungszeiten und Wasseranschlüssen. Es sorgt für hohe Wirtschaftlichkeit und Sicherheit, da auch bei der brandschutztechnisch wichtigen Zargenhinterfüllung keine Fehler mehr passieren können. Nebenbei ist EasyFit geradezu ideal für die Montage bereits fertig beschichteter Türelemente und besonders umweltfreundlich, da auch keine Restmaterialien entsorgt werden müssen.
MIT NUR EINER SCHRAUBE PRO BEFESTIGUNGSPUNKT
Die Novoferm Falz-Schraubmontage erlaubt eine schnelle und saubere Montage der Zargen. Lediglich eine Schraube pro Befestigungspunkt genügt, um maximale Stabilität zu garantieren. Da nur die Hälfte der Schrauben gegenüber einer normalen Dübelmontage erforderlich ist, kann die Montage erheblich schneller erfolgen. Auf diese Weise lassen sich auch die gestalterischen Anforderungen der Architekten umsetzen, denn die im Zargenfalz verdeckten Bohrlöcher sind mit überstreichbaren Abdeckkappen versehen und bei geschlossener Tür absolut unsichtbar.
Auch dieses Verfahren ist bauaufsichtlich zugelassen für T30/ EI2 30-, T60/ EI2 60- und T90/ EI2 90-, Feuerschutz-, Rauchschutzoder Mehrzwecktüren sowie für Türen mit einbruchhemmender Ausstattung bis RC 4. Es ist verwendbar an Sichtbeton- und Sichtmauerwerkswänden (bei EI2 30 auch auf verputzten Wänden), aber auch an Gipskarton-Montagewänden mit Holzständern der Kategorie ab F30-B/ EI 30 und kann mit allen zugelassenen Zargenhinterfüllungen kombiniert werden.
Daten und Fakten:
Projekt: | Munich Urban Colab, Neubau Gründer- und Innovationszentrum |
Projektort: | München |
Bauherr: | UnternehmerTUM GmbH, München |
Architekt: | Steidle Architekten GmbH, München |
Ausführendes Unternehmen: | HOCHTIEF Infrastructure GmbH, München |
Fertigstellung: | Juni 2021 |
Anforderungsprofil: | Funktionale und optisch einheitliche Türsysteme, die alle technischen Anforderungen erfüllen |
Novoferm-Produkte: | System NovoPorta Premio Brandschutztüren · T30/ EI2 30 · T90/ EI2 90 Mehrzwecktüren MZ |
DIE NOVOFERM LÖSUNGEN
Eine wichtige Anforderung an die Ausführung war die Entwicklung von Systemlösungen innerhalb definierter Gewerke. Hier galt es, nicht nur ein beliebiges Produkt zu verbauen, sondern ein aufeinander abgestimmtes Plattformsystem einzusetzen, welches für jede Anforderung passende Lösungen anbietet. Eines dieser Gewerke umfasste beispielsweise den Bereich der Brand- und Rauchschutztüren.
Vom Bauherrn und den Architekten waren funktionale Türsysteme gefordert, die gleichzeitig alle technischen Anforderungen erfüllen und sich dabei dezent in die Gestaltung der Räume integrieren.
Beim Munich Urban Colab wurden deshalb vom Untergeschoss bis auf Ebene 4 Brandschutztüren T30/ EI2 30 und T90/ EI2 90 sowie Mehrzwecktüren aus Stahlblech der Serie NovoPorta Premio von Novoferm eingesetzt.
Einzelne Stahlblechtüren im Untergeschoss sind dabei auch mit einem motorischen Antrieb ausgestattet, der den barrierefreien Zugang zum Gebäude sicherstellt.
NOVOFERM PRODUKTE
FMO - FUNKE Media Office
BRANDSCHUTZ IM NEUEN MEDIENHAUS IN ESSEN
Ein schwarzer, glänzender Gebäudekomplex mit separatem Medienturm an der Spitze und Deutschlands größter „Newswall“: Das ist der neue Funke-Hauptsitz mitten in Essen. Das Gestaltungskonzept des Gebäudekomplexes basiert auf den Farbtönen Schwarz, Silber und Weiß und erinnert an den Prozess des Druckens und damit an die Ursprünge des Medienkonzerns.
Auch das Brandschutzkonzept unterstützt dieses Bild ohne Kompromisse – dank Brandschutztüren und -toren von Novoferm.
Nach knapp dreijähriger Bauzeit arbeiten seit Januar 2019 rund 1.100 Mitarbeiterinnen und Mitarbeiter im neuen Funke-Stammsitz. Bekannte Tageszeitungen sowie Wochenmagazine werden von der Funke Mediengruppe redaktionell erstellt und herausgegeben. Allein zwölf Regionalzeitungen mit rund vier Millionen Lesern werden täglich in Essen produziert.
Projekt: | FMO – Funke Media Office |
Projektort: | Essen |
Bauherr: | Funke Mediengruppe GmbH & Co. KGaA |
Architektur / Generalplanung: | AllesWirdGut Architektur ZT GmbH, Wien/ München FCP Fritsch, Chiari & Partner ZT GmbH, Wien |
Ausführendes Unternehmen: | Kölbl Kruse GmbH |
Fertigstellung: | Januar 2019 |
Anforderungsprofil: | Hohe Ansprüche an die Brandschutzlösungen in Bezug auf Qualität, Flexibilität und Produktvielfalt in Verbindung mit Komfort, Design und Transparenz |
Novoferm-Produkte: | System NovoFire® Rohrrahmentüren aus Aluminium T0, T30-1, T30-1 RS/ T30-2 RS Teilweise mit Seitenteilen, Rauch- und Schallschutz und RC2-Anforderung System NovoPorta Premio Stahlblechtüren T30-1/ T30-2, T90-1/ T90-2, MZ-1/ MZ-2 Feuerschutz-Schiebetore T90 SKE 1/ T90 SKE 2 |
MODERN, GROSSZÜGIG, OFFEN
Auf rund 37.000 Quadratmetern bietet das neue Medienhaus den Mitarbeitern eine Umgebung, die kreatives und gemeinsames Arbeiten fördert. Deshalb sollte die neue Zentrale auch den gestiegenen Anforderungen an moderne Arbeitswelten Rechnung tragen.
Und: Das Gebäude erfüllt höchste Standards und baurechtliche Normen, natürlich auch beim Brandschutz, ohne dass funktionale Zwänge diesen Eindruck mindern.
Die Vorgabe galt auch für die Integration eines umfassenden Brandschutzkonzepts. In der neuen Firmenzentrale wurden deshalb Brandschutztüren und Feuerschutz-Schiebetore von Novoferm eingebaut, die den Stand der Technik und des Designs repräsentieren.
Zur Abtrennung bzw. Verbindung der Gebäudeabschnitte wurden NovoFire® Aluminium Rohrrahmen- und NovoPorta Premio Stahltüren sowie Feuerschutz-Schiebetore von Novoferm eingesetzt. Ausschlaggebend dafür war u.a., dass diese Türen und Tore bei ihrer Kernfunktion Brandschutz den aktuellen – wie den zukünftigen EU-weiten – Normen entsprechen.
Novoferm erweiterte mit den verbauten Türen und Toren auch den gestalterischen Spielraum der Planer. Brandaber auch Schallschutz, so die Philosophie dahinter, sollten Gestaltung und Funktion des Gebäudekomplexes nicht einschränken, sondern wo immer möglich unterstützen.
BRANDSCHUTZ MIT LEICHTIGKEIT
Tatsächlich ist im öffentlichen Bereich und in den Bürolandschaften von Brandschutz nahezu nichts zu sehen. Möglich wurde das durch den Einsatz von Novoferm Aluminium Rohrrahmentüren der Serie NovoFire® in verschiedenen Größen und mit unterschiedlichen Ausstattungen. Ihre schmalen Profile und großen Glasflächen sorgen für Transparenz bei hoher Sicherheit.
Der im Erdgeschoss offen gestaltete Übergang vom Foyer zur Kantine ist in der Brandachse durch zwei zweiflügelige große Novoferm Feuerschutz-Schiebetore T90 SKE 2 mit den Maßen 8.340 mm x 4.000 mm gesichert, die im Brandfall automatisch schließen. Thomas Zauner, bei Novoferm zuständig für das Projekt sagt: „Feuerschutz-Schiebetore in diesen Abmessungen sind für uns Tagesgeschäft und Herausforderung zugleich. Sie müssen den ästhetischen Anforderungen genügen und im Brandfall ihre Funktion zu 100 Prozent erfüllen. Deshalb ist eine fachgerechte Montage wichtig. Sie ist oft die Achillesferse beim Brandschutz. Hier haben wir die Qualität durch unsere Fachmonteure gesichert. Das gilt natürlich für alle von uns im neuen Funke-Stammsitz verbauten Türen und Tore.“
DIE NOVOFERM LÖSUNGEN
Verbaut wurden insgesamt 112 Novoferm Rohrrahmenelemente aus Aluminium der Serie NovoFire®, als Rauchschutztür RS und in der Feuerwiderstandsklasse T30, sowohl ein- als auch zweiflügelig, teilweise mit Seitenteilen sowie Rauch-, Schallschutz- und RC2-Anforderungen.
Weiterhin kamen 155 ein- und zweiflügelige Feuerschutz- und Mehrzwecktüren der Serie NovoPorta Premio zum Einsatz. Die aus Stahl gefertigten T30, T90 und MZ-Türen sichern auf jeder Gebäudeebene und vor allem im Untergeschoss die Funktions- und Technikbereiche.
Neben den zwei großen T90 Feuerschutz-Schiebetoren im Gastronomiebereich des Erdgeschosses wurde in der Lounge, im Wartebereich des 1. OG, ein T90 SKE 1-Feuerschutz-Schiebetor mit Schlupftür montiert. Ein viertes T90 SKE 2-Feuerschutz-Schiebetor mit Schlupftür wurde im Untergeschoss, in der hauseigenen Parkgarage und in Deckenmontage als Niedrigsturz verbaut.
UNSERE PRODUKTE
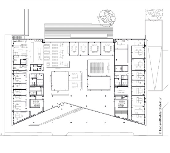
Saint-Gobain Generaldirektion
BRANDSCHUTZ MIT LEICHTIGKEIT
Die Saint-Gobain Gruppe, international führendes Unternehmen auf dem Feld innovativer Bau- und Werkstoffe, wollte mit ihrer neuen Generaldirektion Mitteleuropa ihre „weltweit führende Rolle in der Gestaltung von Lebensräumen“ beweisen.
Das ist in beeindruckender Weise gelungen, nicht nur in ästhetischer Hinsicht. Denn das Verwaltungsgebäude besticht nicht nur durch sein mitarbeiter- und teamarbeitsorientiertes Raumkonzept.
Es erfüllt außerdem, als gleichsam selbstverständliches „Extra“, höchste Standards an Lärmschutz und Klimaeffizienz. Und es verfügt über ein Brandschutzsystem, das Design, Aufenthaltsqualität und Funktionalität nicht nur erlaubt, sondern unsichtbar unterstützt.
Projekt | Saint-Gobain Generaldirektion, Mitteleuropa |
Projektort | Aachen |
Bauträger | AIRE Aachen KS1 Verwaltungs GmbH |
Architekt | kadawittfeldarchitektur GmbH |
Ausführendes Unternehmen | Heinz Cohnen Bauelemente GmbH & Co. KG |
Fertigstellung | 2015 |
Anforderungsprofil | Hohe Ansprüche an Brandschutz, Qualität i.V.m.; Transparenz und Design |
Novoferm-Produkte | System NovoFire® Rohrrahmentüren aus Aluminium RS-1, teilweise mit Seitenteil T30-1 RS, teilweise mit Seitenteil System NovoPorta Premio Multifunktions-Stahltüren |
FUNKTIONSSICHER IM ERNSTFALL
Für die Architekten von kadawittfeldarchitektur war Transparenz, Durchsichtigkeit im wörtlichen Sinn, ein Leitmaßstab für das Gebäudekonzept. Das für Gebäude dieser Größe notwendigerweise komplexe Brandschutzkonzept musste sich diesen Vorgaben selbstverständlich unterordnen. Gerade weil Transparenz und Offenheit auch die Innenarchitektur bestimmen, suchte der Gebäudenutzer für die immerhin 20 Brand- und Rauchschutztüren einen Lieferanten, der höchste Sicherheitsstandards auf individuell gefertigte Produkte überträgt.
Zum Zuge für den sichtbaren Arbeitsbereich kam schließlich Novoferm, mit maßgeschneiderten Rohrrahmentür-Lösungen der Serie NovoFire®; außerdem wurden in den Funktionsbereichen des Untergeschosses Brandschutztüren, teilweise mit Glasausschnitt, der Serie NovoPorta Premio eingesetzt. Wichtig war es für den Bauherrn, dass die Türen sich in jeder Hinsicht in die Architektur eingliedern – das offene, auf Kommunikation und Begegnung ausgerichtete Haus sollte durch Brandschutztüren nicht sichtbar segmentiert werden.
Offenheit wird unter anderem erzeugt durch Weite, deshalb musste Novoferm „Übergrößen“ anfertigen: Die einflügeligen Türen messen 1,50 x 2,60 m, teilweise werden sie durch verglaste Seitenteile ergänzt. Die Farbgebung und die Oberflächenqualität der Rohrrahmenkonstruktionen entspricht dabei exakt der Anmutung der anderen Bauelemente: Besonders wertig aber macht sie ein ganz besonderes Detail: Die Lackierung sämtlicher Aluminium-Rohrrahmentüren ist auf den Farbton der Außenfassade abgestimmt. Das erhöht die Wiedererkennung und verstärkt das einheitliche Erscheinungsbild.
LÖSUNGEN
VARIABLE SCHLIESSFUNKTIONEN
Die Brandschutztüren sollten gemäß Vorgabe der Architekten auch im doppelten Sinne für Barrierefreiheit sorgen. Einerseits ermöglichen sie Rollstuhlfahrern durch ihre Breite von bis zu 1,5 m problemlos das eigenständige Erreichen aller Gebäudeteile. Andererseits sollte die für den Brandschutz erforderliche Segmentierung des Hauses im „Alltagsbetrieb“ nicht erkennbar sein.
Deshalb wurden die Brandschutztüren in diesen Bereichen mit Feststellern versehen, um offene Durchgangswege zu erhalten. Bei Alarm/Gefahr werden die Türen automatisch geschlossen, wobei das Brandschutzsystem je nach Gefahrenmeldung einzelne Türen getrennt oder alle gleichzeitig schließen kann. Mit der exakten Umsetzung der teils sehr spezifischen Anforderungen des architektonischen Konzepts hat Novoferm bewiesen, welche gestalterischen Möglichkeiten Bauherren auch großer und repräsentativer Objekte heute trotz strenger Brandschutznormen haben.
Audi Terminal Hamburg
AUDI SETZT AUF NOVOFERM
Premium-Anbieter stehen auf Qualität. Beim Bau des größten Audi-Autohauses in Norddeutschland vertraute der Bauherr ausschließlich auf sichere Brand- und Rauchschutztüren von Novoferm. Für Auto Wichert ist der Neubau in Hamburg-Langenhorn ein Meilenstein in der Firmengeschichte und zugleich ein Leuchtturm für Audis Markenpräsenz im Norden.
Projekt | Auto Wichert Audi Terminal |
Projektort | Hamburg-Langenhorn |
Bauträger | Auto Wichert, Hamburg |
Architekt | KLETA GmbH Architekten |
Verarbeiter | Woody Ausbau GmbH, Ribnitz-Damgarten |
Fertigstellung | Februar 2015 |
Anforderungsprofil | Hohe Ansprüche an Brandschutz, Qualität, Funktionalität, Individualität und Design |
Novoferm-Produkte | Feuerschutztüren Rauchschutztüren Mehrzwecktüren Sicherheitstüren |
TÜREN AUS STAHL
Moderne Industrie- und Gewerbebauten müssen den Vorschriften des betrieblichen Brandschutzes entsprechen. Ein Feuer kann zum größtmöglichen Schaden führen. Daher stellt die richtige Organisation des Brandschutzes für Unternehmen einen zentralen Baustein im Sicherheitskonzept dar. Hierzu zählen insbesondere Feuerschutz- Türen und Tore, die im Ernstfall einzelne Gebäudeteile sicher voneinander trennen oder auch als Gebäudeabschluss dienen.
Im neuen Audi Terminal wurden diese Anforderungen durch den Einsatz hochwertiger Stahlblechtüren erfüllt. In sämtlichen Brandschutzabschnitten, beispielsweise zwischen den Lagern, den Werkstattbereichen, den Ausstellungsräumen, der Verwaltung oder auch zur Abschottung der Treppenhäuser, kamen bedarfsgerecht konfigurierte Brand und Rauchschutztüren von Novoferm zum Einsatz.
Diese überzeugten die Auftraggeber mit hoher Qualität, großer Funktionalität und einer attraktiven Gestaltung.
Schutzfunktion und Design
Novoferm ist ein Spezialist für Stahltüren. Brand- und Rauchschutz-Spezifikationen zählen zur Kernkompetenz des Unternehmens. Angeboten werden unterschiedlichste Varianten bis hin zu hochwertigen Sonderausführungen.
Robust und solide ausgestattet, eignen sich diese Stahltüren nicht nur für den Einsatz im harten Werkstattalltag, sondern – wie hier bei Audi – mit ihrer wohnlichen Dickfalz und attraktiven Oberflächendesigns gleichermaßen auch im Büro- und Verwaltungsbereich. Vielfältige Verglasungsarten oder Sonderausführungen mit spezifischen Lackierungen oder Folierungen ermöglichen dabei selbst individuelle Türdesigns.
Im neuen Audi Terminal kamen ein und zweiflügelige Novoferm-Feuerschutztüren, T30 und T90, mit der vorgeschriebenen Selbstschließung zum Einsatz. In besonders hoch frequentierten Bereichen wurden zudem Sonderlösungen mit elektromechanischer Feststellung installiert. Vernetzt mit der Rauchmeldeanlage schließen diese Türen im Gefahrenfall automatisch. Im Alltag aber bleiben sie bequem geöffnet und sichern so den schnellen, ungehemmten Arbeitsgang. In anderen Bereichen, wie beispielsweise den Treppenhäusern, wurden überdies Feuerschutztüren mit zusätzlicher Rauchschutzfunktion eingebaut, die für eine sichere Abschottung der Zubringer im Brandfall sorgen.
Kurz:
Für jede Anforderung die richtige Lösung. Im Ergebnis erlaubten die breite Vielfalt an möglichen Ausführungen, Größen und Ausstattungen mit exakt auf das Objekt zugeschnittenen Novoferm-Systemlösungen im neuen Audi Terminal eine passgenaue und effiziente Umsetzung des vorgegebenen Brandschutzkonzeptes. Funktional überzeugend, attraktiv in der Gestaltung und hochwertig in der Qualität - zum Schutz von Menschenleben und Sachwerten.
Lösungen
Architektur als Markenkommunikation In Hamburg an der Langenhorner Chaussee eröffnete jetzt ein ganz neues, stylisches Audi Terminal. Seine Gestaltung mit den hohen Glasfronten und den Fassaden-Asymmetrien ist Teil einer weltweit wiedererkennbaren Architektursprache. Ein starkes Symbol Audis progressiver Markenbotschaft.
Der lichtdurchflutete Gebäudekomplex mit einer Nutzfläche von 38.000 qm, verteilt auf vier Geschosse, präsentiert sich als echter Blickfang. Bis zu 120 Audi Neuwagen und 250 Gebrauchtwagen können hier ausgestellt werden. Mit seinem integrierten virtuellen Showroom ist dieses Audi Terminal Vorreiter und noch einzigartig in ganz Deutschland.
Porsche Zentrum Mannheim
SHOP-DESIGN DER EXTRAKLASSE
Das neue Porsche Zentrum zählt durch seine repräsentative Architektur und wegweisende Ökoeffizienz zu den modernsten Zentren weltweit. Entsprechend hoch waren die Anforderungen selbst an die verschiedenartigen Funktionstüren im Inneren. Die Vorgaben des Brandschutzkonzepts wurden konsequent umgesetzt, auch durch den Einsatz von stabilen Stahlblechtüren. Die Türen und Tore von Novoferm haben durch gute Qualität, große Funktionalität und attraktivem Design überzeugt.
Projekt | Porsche Zentrum |
Projektort | Mannheim |
Bauträger | PAE Reality GmbH |
Architekt | Schormann Architekten |
Fertigstellung | April 2014 |
Anforderungsprofil | Hohe Ansprüche an Brandschutz, Qualität, Funktionalität, Individualität und Design |
Novoferm-Produkte | Brandschutztüren Mehrzwecktüren |
FEUERSCHUTZ- UND MEHRZWECKTÜREN NACH MASS
Hohe Anforderungen an Produkt-Qualität und Funktionalität waren Grundvoraussetzung für den Einsatz der ein- und zweiflügeligen T30 und T90 Stahl-Feuerschutztüren, der ansprechenden Novoferm N-Baureihe. Diese zeichnen sich durch ihre aufwendige Verarbeitung und eine attraktive Dickfalz-Bauform aus. Eine Vielzahl zugelassener Sonderausstattungunsmöglichkeiten erlauben auch spezielle objektbezogene Individuallösungen.
Beispielsweise wurden Feuerschutztüren mit selbstständig öffnendem elektrischen Drehtürantrieb oder spezielle Obentürschließer-Ausführungen mit integrierter Feststellanlage sowie Schallschutztüren eingebaut. Im Bereich der Lüftungszentrale, im Serverraum oder im Treppenhaus wurden zudem Feuerschutztüren mit zusätzlicher Rauchschutzfunktion eingebracht.
Diese große Vielfalt an lieferbaren Ausführungen, Größen und Ausstattungen mit exakt auf das Objekt zugeschnittenen System-Lösungen von Novoferm erlaubte eine problemlose und effiziente Umsetzung des Brandschutzkonzeptes. Hinzu kommen eine ganze Reihe von Mehrzwecktüren für unterschiedliche Anwendungsbereiche – Alle solide und robust ausgestattet für einen harten Türen-Alltag in der Praxis.
Optisches Tuning
Kundenwunsch war es auch diese Türen optisch in die edle Gesamterscheinung des Gebäudes im Rahmen der Zulassungsbestimmungen nahtlos einzubinden. So wurden die von Haus aus mit wohnlichem Dickfalz ausgeführten Funktionstüren mit edlen anthrazitfarbigen Endlackierungen, teilweise mit Verglasungen und weiteren Sonderlösungen optisch veredelt. Sämtliche Türen sind mit hochwertigen Edelstahlbeschlägen ausgerüstet. Weiterhin sind alle Schließer als Gleitschienen-Türschließer, bei den zweiflügeligen Türen mit integrierter Schließfolgeregelung, ausgeführt. Abgerundet wird das Bild durch spezielle Edelstahltrittschutzblenden im Fußbereich.
Neues Porsche Zentrum setzt Maßstäbe
Faszination Porsche. In dem neu erbauten Porsche Zentrum in Mannheim ist diese Faszination in einem besonderen Maße erlebbar. Unter einer silbern glänzenden Außenhaut ist ein ästhetisch prägnantes, hochmodernes Autohaus nach weltweit einheitlicher Corporate Identity entstanden. Besonders attraktiv ist der zweigeschossige Ausstellungsraum auf 6.000 qm. Seine anspruchsvolle Architektur setzt die Sportwagen perfekt in Szene.
NOVOFERM PRODUKTE
ONE Goetheplaza
HOHER GESTALTERISCHER ANSPRUCH
Das entworfene Ensemble bildet die Eingangsflanke zu Frankfurts nobelster Einkaufsstraße. Entsprechend wertig erfolgte der Innenausbau: Eine echte Herausforderung im Bereich der meist eher funktional gestalteten Brandschutztüren. Die ausführenden Architekten entschieden sich für Rohrrahmentüren aus Aluminium des Systems NovoFire® von Novoferm. Diese überzeugten nicht nur funktionell, sondern auch von der Designsprache mit einer klaren Struktur und edlen Oberflächen.
Projekt | ONE Goetheplaza |
Projektort | Frankfurt |
Bauträger | AREA und FREO Group |
Architekt | Professor Christoph Mäckler Architekten |
Fertigstellung | 2014 |
Anforderungsprofil | Brandschutz im attraktiven Design |
Novoferm-Produkte | Brandschutztüren Aluminium-Rohrrahmen-Türen |
FUNKTIONSSICHER IM ERNSTFALL
Das Haupt-Treppenhaus ist gegen die Auswirkungen von Feuer besonders zu schützen. Belüftete Gänge und Treppenhäuser gewährleisten ein angenehmes Raumklima. Sie stellen die Türtechnik allerdings vor eine besondere Herausforderung: Aus den wechselnden Luftdrücken in den einzelnen Abschnitten resultieren regelmäßig schwankende Kräfte für die Betätigung der Türen.
Schließen im Brandfall beide Türen eines Abschnitts – einer Schleuse – gleichzeitig, entsteht im Inneren ein Überdruck. Dadurch können die Türen nicht mehr vollständig automatisch schließen. Der Brandschutz ist gefährdet. Ein grundsätzliches Problem. In Frankfurt löste man dies über die hohe Funktionalität der hier eingesetzten BS-Türen. Die in diesem System integrierten Obentürschließer verfügen über eine exakte Feinjustierung im Verbund mit präzise gearbeiteten Fallen und exakt passenden Dichtungen. Über die Feinjustierung war eine aufwendige, aber ganz individuelle Anpassung der Schließzeit möglich. Nun schließt eine Tür etwas zeitverzögert zur anderen. Der Luftdruck kann entweichen. Im Ernstfall überlebenswichtig. Im Ergebnis bedeutet das: ein sicheres Schließen ohne Schlagen und zugleich ein komfortables Öffnen ohne Kraftaufwand.
So konnte im ONE Goetheplaza durch die hochwertige Produktwahl und die präzise Montage eine für Architekten und Bauherrn überzeugende Lösung für dieses anspruchsvolle Objekt gefunden werden.
Die hier eingesetzten NovoFire®-Brandschutztüren fügen sich nicht nur funktional, sondern auch gestalterisch perfekt in das anspruchsvolle architektonische Umfeld ein.
ONE GOETHEPLAZA - Neue Topadresse für Premium-Shopper
Vor Kurzem eröffnete in Frankfurt, in bester Innenstadtlage mit direktem Zugang zum Geschäfts- und Bankenviertel das Shoppingquartier „ONE Goetheplaza“ als attraktive Topadresse für Trend-Marken und Luxus-Labels. Planerisch ging es um die Restrukturierung eines innerstädtischen Komplexes durch Abriss und nachfolgenden Neubau von hochwertigen Büro- und Einzelhandelsflächen.
Rund 120 ein- und zweiflügelige Brandschutztüren dieses variantenreichen Systems wurden innen verbaut. 23 NovoFire®-Rauchschutz- und 96 Feuerschutztüren mit Widerstandsklasse T30 bzw. T90, teilweise mit Vollpanikfunktion.
KOMPAKTE SICHERHEIT MIT MEHRFACHNUTZEN
Die NovoFire® Zargen- und Türprofile kommen mit nur einem Brandschutzkern aus, der ohne zusätzliche Klammern mittig im Profil verankert ist. Diese kompakte Konstruktion ermöglicht zum einen eine einheitliche Ansichtsbreite von nur 150 mm. Zum anderen bleiben die äußeren Profilkammern frei und können beispielsweise für Kabeldurchführungen oder zur Befestigung von Anbauteilen genutzt werden. Der Türfalz der T30- und T90-Türen ist dreiseitig mit einem durchgängigen, mit schwarzem PVC beschichteten Brandschutzstreifen verkleidet. Bei einfacher Reinigung gewähren so auch die geöffneten Türen einen dauerhaft schönen Einblick.
Stadt- und Verwaltungshaus Gießen
TRANSPARENTE OFFENHEIT UND BÜRGERNÄHE
Der 2009 eröffnete Neubau des Gießener Rathauses am Berliner Platz besteht aus zwei Gebäudekörpern: dem eigentlichen „Verwaltungshaus“ sowie einem „Stadthaus“. Letzteres umfasst, durch eine gläserne Halle direkt zum Platz geöffnet, neben dem Stadtbüro eine Kunsthalle, einen Konzertsaal und eine dreigeschossige Bibliothek. Zahlreiche, von Tageslicht durchflutete Galerien und Lichthöfe sowie die Transparenz der großen Glasflächen im Inneren sollen Zeichen sein für eine offene Verwaltung und Bürgernähe.
Bauherr | Magistrat der Universitätsstadt Gießen |
Architekt | aplus architektur, Gießen |
Nutzfläche gesamt: | 30.345 m² |
Hauptnutzfläche | 17.149 m² |
Nebennutzfläche | 13.196 m² |
Brutto-Geschossfläche | 45.200 m² |
Brutto-Rauminhalt: | 170.103 m³ |
Eingebaute Abschlüsse | |
NovoFire® T30-1/F30, mit Einbruchhemmung WK2 oder WK3 | 105 |
NovoFire® T30-2/F30, mit Einbruchhemmung WK2 oder WK3 | 9 |
BRANDSCHUTZ OHNE KOMPROMISSE IM DESIGN
In direkter Nachbarschaft zur Kongresshalle aus der Nachkriegszeit und zum gründerzeitlichen Stadttheater „steht das neue Rathaus selbstbewusst in Gießens Mitte, zurückhaltend, jedoch konsequent, sehr direkt in seiner Architektursprache, mit dem Anspruch, ein Haus der Bürger für viele Jahrzehnte zu sein, dem Nutzer zu dienen und Räume zu bieten, in denen sich alle wohlfühlen“, so Dipl.-Ing. Architektin Ute Kramm von aplus architektur (Gießen).
Für die großzügigen Glasflächen im Inneren, die den Anspruch des Gebäudes auf Transparenz und Offenheit maßgeblich tragen, lieferte Novoferm knapp 150 Rauch- und Feuerschutztüren NovoFire® in Glasrahmenkonstruktion, die sich nicht nur funktional, sondern auch optisch perfekt in das architektonische Umfeld einfügen.
HOHE FUNKTIONALITÄT FÜR ANSPRUCHSVOLLE OBJEKTE
Die Glasrahmenkonstruktionen Novofire® aus Aluminium oder Stahl bieten transparenten Rauch- und Feuerschutz mit hohem Funktionsumfang: Rauchdichtigkeit nach DIN 18095, Feuerwiderstandsklassen T30/F30 oder T90/F90 nach DIN 4102 (geprüft nach DIN EN 1634) sowie Einbruchhemmung nach DIN EN V 1627 in den Klassen WK1 oder WK2 (optional auch WK3) eröffnen zahlreiche Einsatzmöglichkeiten im anspruchsvollen Objektgeschäft.
Dabei sind die ein- oder zweiflügeligen Rauch-/Feuerschutztüren kombinierbar mit Festelementen in beliebiger Sprossenaufteilung bis 4,0 m (F90) bzw. 5,0 m (F30) Höhe. Obentürschließer, E-Öffner oder auch Anti-Panik-Funktionen nach DIN EN 179 oder DIN EN 1125 sind integrierbar.
KOMPAKTE SICHERHEIT MIT MEHRFACHNUTZEN
Die NovoFire® Zargen- und Türprofile kommen mit nur einem Brandschutzkern aus, der ohne zusätzliche Klammern mittig im Profil verankert ist. Diese kompakte Konstruktion ermöglicht zum einen eine einheitliche Ansichtsbreite von nur 150 mm. Zum anderen bleiben die äußeren Profilkammern frei und können beispielsweise für Kabeldurchführungen oder zur Befestigung von Anbauteilen genutzt werden. Der Türfalz der T30- und T90-Türen ist dreiseitig mit einem durchgängigen, mit schwarzem PVC beschichteten Brandschutzstreifen verkleidet. Bei einfacher Reinigung gewähren so auch die geöffneten Türen einen dauerhaft schönen Einblick.



HOHE STABILITÄT FÜR LANGE LEBENSDAUER
Eine Wandstärke von 4 mm und innenliegende Verstärkungen im Bereich der Bänder und Anbauteile machen die NovoFire® Türelemente extrem robust gegenüber mechanischen Einflüssen. Dank der Verstärkungen benötigen die Türen gleichzeitig nur zwei Bänder, was wiederum den Einstell- und Wartungsaufwand verringert sowie die Leichtgängigkeit der Türflügel zusätzlich begünstigt. Zudem sorgt die Trockenverglasung mit EPDM-Dichtungen für einen langlebigen, pflegeleichten Übergang vom Profil zum Glas.



KOMPROMISSLOSES DESIGN
Mit der konsequenten Ansichtsgleichheit vom Rauchschutz bis zur Feuerwiderstandsklasse F90, mit der Kombinierbarkeit von Türen, Seitenteilen und Oberlichtern bis 5,0 m Höhe (F30), mit nur zwei Bändern je Türflügel sowie der Flächenbündigkeit von Zargen- und Türprofil bieten die NovoFire® Glasrahmenkonstruktionen Brandschutz ohne Kompromisse im Design. Für hohe ästhetische Ansprüche. Für maximale Gestaltungsfreiheit. Für transparente Nachhaltigkeit.



STÄDTEBAULICHE LEISTUNG
Mit dem 6-geschossigen Verwaltungshaus, dem 5-geschossigen Stadthaus, beide verbunden durch eine 3-geschossige Eingangshalle sowie mit der Tiefgarage, die auf zwei unterirdischen Ebenen 426 Stellplätze sowie Lager- und Nebenräume beinhaltet, realisierte die Universitätsstadt Gießen innerhalb von nur zwei Jahren Bauzeit einen Rathaus-Neubau mit insgesamt 170.000 m³ umbautem Raum.
ADAC Zentrale München
DURCHDACHTES DESIGN FÜR GELBE ENGEL
Der ADAC – unter den Automobilclubs die Nr. 1 in Europa – weihte im Mai 2012 nach sieben Jahren Bauzeit feierlich seine neue Zentrale ein. Das vom Architekturbüro Sauerbruch Hutton geplante markante Objekt vereint erstmals alle 2400 Mitarbeiter unter einem Dach. Es basiert auf einem sternförmig angelegten fünfgeschossigen Sockelbau, aus dem ein ebenso markanter 18-geschossiger Büroturm über 90 m in die Höhe ragt – insgesamt mit über 36.000 qm Glasfassade, 129.000 qm Bruttogeschossfläche und einem hochinnovativen Energiekonzept.
Projekt | ADAC e.V. |
Projektort | München |
Bauherr | ADAC e.V. München |
Bauzeit: | 2006 bis 2012 |
Bruttogeschossfläche | 129.000 qm |
Eingebaute Abschlüsse | |
Novoferm Feuerschutztüren T30, 1- / 2-flgl., teilw. einbruchhemmend | 399 |
Novoferm Feuerschutztüren T90, 1- / 2-flgl., teilw. einbruchhemmend | 485 |
Novoferm Stahl-Mehrzwecktüren, teilw. einbruchhemmend | 146 |
Feuerschutz-Schiebetore, teilw. mit Schlupftür und Taschenklappen | 42 |
HÖCHSTE ANSPRÜCHE AN FUNKTIONALITÄT
Über achtzehn Millionen Mitgliedern bietet der ADAC Hilfe, Schutz und Rat, über 2400 ADAC-Mitarbeiter kümmern sich tagtäglich um deren Belange. Der Neubau schafft die Voraussetzung dafür, dass alles reibungslos ineinandergreift. Zusätzlich muss er sicherstellen, dass Mitarbeiter und Unternehmen vor Schäden geschützt sind. Dazu zählt heute insbesondere der vorbeugende Brandschutz. Nur der Einbau ausgereifter, auf die baulichen Anforderungen abgestimmter und typgeprüfter Feuer- und Rauchschutzabschlüsse garantiert im Brandfall Sicherheit. Novoferm verfügt nicht nur über langjährige Erfahrung und die notwendige Produktpalette auf diesem Sektor, sondern auch über das erforderliche Know-how für individuelle Sonderlösungen – Eigenschaften, die auch bei diesem Objekt den Ausschlag gegeben haben.
UNSICHTBAR EINGEBAUTE FEUERSCHUTZ-SCHIEBETORE
Aus Sicht des vorbeugenden Brandschutzes sind die Bereiche rund um Aufzüge besonders neuralgische Punkte. Hier gilt es, im Brandfall Fluchtwege sicherzustellen, ohne dass die dazu erforderlichen Sicherheitseinrichtungen allzu deutlich ins Auge springen.
In der ADAC-Zentrale wird ein Großteil der Aufzugsvorräume durch Feuerschutz-Schiebetore gesichert. Sie schließen den Abschnitt im Brandfall vollautomatisch.
In Ruhestellung sind sie jedoch – hinter Taschen- und Deckenklappen verborgen – so gut wie unsichtbar.

NOVOFERM – STARK IN SONDERLÖSUNGEN
Eines von vielen Beispielen:
Auf sämtlichen Etagen der ADAC-Zentrale wurden spezielle Entrauchungsklappen eingebaut – insgesamt weit über 100 Stück, die alle in einen zentralen Entrauchungskanal münden.
Die Klappen sind mit invers montierten Obentürschließern und besonderen elektrischen Türöffnern ausgestattet.
Diese Türöffner entriegeln auch noch unter hoher Vorlast.
Sie sind über eine hochkomplexe Steuerung samt Notstromversorgung mit der Gebäudeleittechnik verbunden. Sobald über einen Rauchmelder Alarm ausgelöst wird, öffnen die Klappen selbsttätig und der Rauch kann abgesaugt werden.
FUNKTIONSSICHERHEIT PLUS LEICHTES ÖFFNEN
Feuerschutztüren können leicht über 100 kg pro Flügel wiegen – je nach Abmessung, Brandschutzklasse und natürlich Sonderausstattung.
Die Folge: Sie lassen sich nur mit erheblichem Krafteinsatz öffnen.
Novoferm Brandschutztüren werden deshalb gerade in Bereichen mit starkem Personen- und Publikumsverkehr – den aktuellen Vorschriften entsprechend – barrierefrei ausgeführt. Um die maximal zulässigen Öffnungskräfte sicherzustellen, kommen Drehflügelantriebe incl. den erforderlichen Sicherheitseinrichtungen zum Einsatz. Novoferm arbeitet hier von der Beratung bis zur Abnahme ausschließlich mit den führenden Systemlieferanten zusammen.
QUALITÄT IST UNSERE STÄRKE
Im Gewerbegebiet des Münchner Westens erhebt sich „Münchens neues Wahrzeichen“*, der weithin sichtbare 93 Meter hohe ADAC-Büroturm. Neben seiner architektonischen Bedeutung steht er auch für moderne, innovative Gebäudetechnik. Dazu gehört – neben Novoferm Feuerschutzabschlüssen – das Energiekonzept, bei dem außer Frischluft-, Sonnenschutz- und Kühlsystemen auch Erdwärme und Photovoltaik zum Einsatz kommen.
*Zitat „Münchner Merkur“

Unternehmenszentrale Germanischer Lloyd Hamburg
MODERNE OFFENHEIT
Mit dem Bezug der neuen Unternehmenszentrale im Jahr 2010 führte die Germanischer Lloyd SE Mitarbeiter von 14 Standorten in der HafenCity von Hamburg zusammen. Der architektonische Ausdruck im Zusammenspiel von Tradition und Moderne unterstreicht, was die Funktionalität der offenen Bürolandschaften unterstützt:
Auf einer Fläche von 45.000 m² arbeiten Spezialisten unterschiedlichster Disziplinen konzentriert am gemeinsamen Ziel, der Sicherheit in der Maritimen- und Energiewirtschaft.
Bauherr | Germanischer Lloyd SE, Hamburg |
Architekt | Jan Störmer, Architekturbüro Störmer, Murphy and Partners GbR, Hamburg |
Brutto-Geschossfläche: | 54.400 m² |
Eingebaute Abschlüsse | |
NovoFire Alu® T90, Alu-Profilrohr-Rahmenelemente 1- / 2-flgl., verglast, teilweise mit Rauchschutz | 48 |
NovoFire Alu® T30, Alu-Profilrohr-Rahmenelemente 1- / 2-flgl., verglast, teilweise mit Rauchschutz | 187 |
NovoFire Alu®, Alu-Profilrohr-Rahmenelemente 1- / 2-flgl., verglast, teilweise mit Rauchschutz | 113 |
NovoFire® T90 / T30, Stahlblechtüren 1- / 2-flgl. | 323 |
Mehrzwecktüren MZ 53, Stahlblech 1- / 2-flgl. | 49 |
VIEL LICHT, VIEL SCHUTZ, VIEL SICHERHEIT
Die zum traditionellen Bild der HafenCity passende Backsteinfassade der Unternehmenszentrale der weltweit aktiven Germanischer Lloyd SE unterbricht der Architekt Jan Störmer mit einem zurückgesetzten, imposanten Glaskubus. Hier werden Mitarbeiter wie Besucher von viel Licht empfangen. Diese Lichtdurchlässigkeit, die architektonische Interpretation des Geistes der Zusammenarbeit beim Germanischen Lloyd, zieht sich durch das gesamte Objekt. Auch dort, wo Türen eine Barriere für Feuer, Rauch oder Schall bilden. Zur Umsetzung dient das variable Türenspektrum NovoFire® von Novoferm. So unterschiedlich die baulichen Vorschriften für Ein-, Aus-, Durch- und Zugänge auch sind, so einheitlich präsentiert sich die optische Erscheinung in der von Bauherr und Architekt entwickelten Designsprache.
ALUMINIUM, GLAS UND STAHL IN EINHEITLICHEM DESIGN
Brandschutzbestimmungen und architektonische Vorgaben führen zu speziellen Anforderungen für Türen. Mit Beratungskompetenz und dem ebenso breiten wie variablen Lieferprogramm „NovoFire®“ deckt Novoferm nahezu alle Bedingungen ab: feuerhemmende T30- und feuerbeständige T90-Türen nach DIN 4102 (geprüft nach DIN EN 1634), bedarfsweise mit Rauchhemmung nach DIN 18095, Schalldämmung nach DIN EN ISO 717-1 und Einbruchhemmung nach DIN V ENV 1627.
In der Unternehmenszentrale des Germanischen Lloyd kamen ein- und zweiflügelige Aluminium-Profilrohr-Rahmentüren mit Verglasung sowie Stahlblechtüren mit und ohne Lichtdurchlässe zum Einsatz.



VARIABLE ANPASSUNG MIT OBERBLENDEN UND SEITENTEILEN
Durchgangshöhen und -breiten im Gebäude variieren. Passende Oberblenden und Seitenteile in der jeweils geforderten Schutzklasse schaffen ein harmonisches Gesamtbild. Die Aluminium-Profilrohr-Rahmenkonstruktion erlaubt die Aufnahme von Glas ebenso wie von in Rahmenfarbe pulverbeschichteten Aluminiumpaneelfüllungen.
Die Profiltiefe von T30-Elementen beträgt 74 mm, von T90-Elementen 90 mm. Ein optisch kaum wahrnehmbarer Unterschied, der zur Ansichtsgleichheit beiträgt.



INTEGRIERTER SCHALL- UND/ODER RAUCHSCHUTZ, NAHZU UNSICHTBAR
Eigenschaften von Türen werden nicht zuletzt von dem bestimmt, was hinter ihnen geschehen soll. Im Seminarbereich der Germanischer Loyd SE muss beispielsweise ein Höchstmaß an Ruhe herrschen.
Dazu sind die Türen hier mit Schalldämmung speziell angepasst. Im Brandfall sorgen der zusätzlich an neuralgischen Stellen integrierte Rauchschutz sowie die gesteuerten Türschließer mit integrierter Feststellung für höchste Sicherheit für Mitarbeiter, Besucher und Seminarteilnehmer.
So werden Schall-, Brand- und Rauchschutz maßgeschneidert und gleichzeitig nahezu unsichtbar kombiniert.


INDIVIDUELLE LÖSUNGEN FÜR JEDE EINZELNE TÜR
In der visuellen Wahrnehmung sind alle Türen gleich – und doch ist fast jede ein Unikat. Individuelle Komfort-Optionen wie Drehflügelantriebe für zweiflügelige Türen sind hierfür ein Beispiel.
Die Systemsicherheit gewährleistet Novoferm:
Das konstruktiv abgestimmte Zusammenspiel der Komponenten und die werkseitige Vormontage von Tür und Antrieb stellen Funktionalität und Langlebigkeit sicher.



NACH ALLEN REGELN DER KUNST
Normen und Richtlinien bestimmen das Handeln des Germanischen Lloyd. Auf dieser Basis, doch gepaart mit Ingenieurskunst, arbeiten rund 6.800 Experten in aller Welt für die Sicherheit von Mensch und Natur.
Gleichermaßen bestimmen Normen und Gesetze das Bauen.
Mit Baukunst ist es Architekt Jan Störmer eindrucksvoll gelungen, dem Geist der Germanischer Lloyd SE ein Gesicht zu geben.
Headquarter ECE Projektmanagement GMBH & Co. KG Hamburg
DURCHDACHTE VERBINDUNGSWEGE
Den wirkungsvollsten Weg zum Kunden finden – das war für Versandhauspionier Werner Otto von jeher die Maxime. Nicht nur über Kataloge, auch vis à vis mit dem Käufer, in großzügigen Einkaufszentren.
Was 1965 mit Gründung der ECE als Idee begann, prägt heute vielerorts das Stadtbild:
Rund einhundertvierzig Shopping-Center betreibt das Unternehmen, viele selbst entwickelt und gebaut. Realisiert ein Konzern mit dieser Profession seine eigene Zentrale, gelten natürlich besondere Maßstäbe – auch für die Flure und Gänge, also die internen Verbindungswege.
Bauherr | ECE Projektmanagement GmbH & Co. KG |
Architekten | Dipl.-Ing. Arch. BDA Alice Kriegel (Chicago), Dipl.-Ing. Arch. Ansgar Beinke (Berlin) |
Brutto-Geschossfläche | 25.600 m² |
Investitionsvolumen ca. | 38 Mio. EUR |
Eingebaute Abschlüsse | |
Fuego light T30, Stahlrohr-Rahmenelemente, 1-flgl., verglast, mit Rauchschutz | 127 |
Feuerschutztüren T90 / T30, Stahlblech, 1- / 2-flgl. | 45 |
Mehrzwecktüren MZ 53, Stahlblech, 1- / 2-flgl. | 5 |
Feuerschutz-Schiebetore SKE 1 T90, Stahlblech, 1-flgl. | 2 |
DAS RICHTIGE RAHMENPROGRAMM
Getreu dem ECE-Konzept, Einkaufsmeilen auf bereits urbanisierten Flächen der Innenstädte zu errichten und so diese für pulsierendes Leben zurückzuerobern, entstand als neues Headquarter des Konzerns ein Büro- und Geschäftshaus mit rund 25.600 m² Brutto-Geschossfläche im Herzen des Hamburger Stadtteils Poppenbüttel.
Umrahmt von Hauptverkehrsstraßen, der S-Bahn und Geschäften fügten die Architekten den Neubau exakt in die durch den Bestand vorgegebene Topografie ein. Passen musste auch das Innere des Gebäudes – hier zu den Ansprüchen eines Bauherrn mit eigener hoher Fachkompetenz. Ökonomie galt es mit Ökologie in Einklang zu bringen, ebenso Sicherheit und Funktionalität mit Ambiente und Anmutung.
Mit variantenreichen Feuer- und Rauchschutzelementen aus Stahlrohrprofilen und den dazu passenden Stahlblechtüren bot Novoferm dafür das richtige Rahmenprogramm.
BRANDSICHER BEI VERZWEIGTEN GÄNGEN
Zahlreiche Flure verbinden in der ECE-Zentrale sinnvoll gegliederte Arbeitsbereiche. Gleichzeitig gilt es, Brandschutzabschnitte zu trennen. Transparente Feuerschutztüren aus Stahlrohrprofilen des Systems Fuego light (hier T30) erfüllen diesen Zweck unter technischen wie optischen Gesichtspunkten optimal.
Die 65 mm schlanke Rahmenkonstruktion fasst Verglasungen mit bedarfsgerechten Eigenschaften ein und bildet so ein bauaufsichtlich zugelassenes Systemelement: feuerhemmend oder feuerbeständig nach DIN 4102 (geprüft nach DIN EN 1634), bei Bedarf mit Rauchhemmung nach DIN 18095 und/oder Schalldämmung nach DIN EN ISO 717-1.



SCHLIESSSICHER BEI WECHSELNDEM LUFTDRUCK
Belüftete Gänge und Treppenhäuser gewährleisten ein angenehmes Raumklima, stellen die Türentechnik allerdings vor besondere Herausforderungen: Aus wechselnden Luftdrücken in den einzelnen Abschnitten resultieren schwankende Kräfte für die Betätigung der Türen.
Integrierte Obentürschließer mit Feinjustierung, präzise gearbeitete Fallen, exakt passende Dichtungen – also Qualität im Detail – zeichnen hier die Novoferm-Feuerschutzelemente aus. So ist die individuelle Anpassung möglich.
Mit dem Ergebnis: sicheres Schließen ohne Schlagen, komfortables Öffnen mit geringem Kraftaufwand.



ZUTRITTSSICHER BEI HOHEM LEISTUNGSDRUCK
Komplexe Haustechnik und sensible Computertechnik im Untergeschoss leisten rund um die Uhr, 365 Tage im Jahr, Dienste für die etwa 600 Mitarbeiter, machen also effizientes Arbeiten erst möglich.
Ein- und zweiflügelige Feuerschutztüren in T30 und T90 sowie Mehrzwecktüren aus Stahlblech schützen diesen höchst sicherheitsrelevanten Trakt zuverlässig vor Feuer und Rauch und erschweren zudem den unberechtigten Zutritt. In leuchtendem Gelb Lackierte Zargen lockern das Erscheinungsbild auf.



FUNKTIONSSICHER IM ERNSTFALL
Geschäftiges Treiben in der Tiefgarage:
Die Zu- und Ausfahrten sind ganzjährig geöffnet. Doch im Brandfall verhindern automatisch schließende Novoferm Feuerschutz-Schiebetore des Typs T90 SKE 1 mit einer Torblattdicke von 67 mm eine Ausbreitung des Feuers. Funktionssicherheit im Ernstfall – der möglichst nie eintreten sollte – gewährleisten die hochwertigen Materialien, speziell die beweglichen Teile wie das Röhrenlaufwerk mit doppelpaarigen Rollapparaten oder die elektrische Feststellanlage sowie der serienmäßige Signalgeber bei Torauslösung.


DIE VERBINDUNG VON PREIS UND QUALITÄT
Rentables Bauen und Bewirtschaften von Spezialimmobilien gehören zur Kernkompetenz der ECE. Entscheidungen für Produkte und Dienstleister basieren daher auf dem Wertedreieck „Preis-Leistung-Qualität“.
Nicht nur die Brandschutzabschlüsse von Novoferm waren hier „ihren Preis wert“. Einen Preis anderer Art erhielt die ECE für das gesamte Gebäude: das „Zertifikat in Silber“ von der Deutschen Gesellschaft für Nachhaltiges Bauen e.V.



Opernturm Frankfurt
ÜBER 500 BRANDSCHUTZTÜREN ALLEIN IM HERZSTÜCK
170 Meter und 42 Stockwerke ragt der 2010 fertiggestellte OpernTurm gegenüber der alten Frankfurter Oper auf. Allein im Herzstück, der Tiefgarage und den Technikräumen, wurden über 500 Novoferm Brand- und Rauchschutzabschlüsse eingebaut.
Dem Bürohochhaus vorgelagert ist ein Podiumbau, der vor allem durch zwei markante Details besticht:
Die viergeschossige repräsentative Eingangshalle sowie die Ladenzeile mit ihren über sieben Meter hohen Arkaden..
Architekten | Prof. Christoph Mäckler |
Projektentwickler | Tishman Speyer |
Bauzeit | 2006 bis 2010 |
Grundstücksfläche | 10.300 qm, bebaut ca. 5.800 qm |
Bürofläche ca. | 67.000 qm |
Höhe | 168 m |
Etagen | 42 |
Umweltzertifizierung | LEED-Gold |
Eingebaute Abschlüsse | |
T30 Feuer- und Rauchschutztüren, teilweise einbruchhemmend | 381 |
T90 Feuer- und Rauchschutztüren, teilweise einbruchhemmend | 149 |
Rauchschutz- und Mehrzwecktüren | 121 |
MODERNES GEBÄUDEKONZEPT IN HISTORISCHER UMGEBUNG
Auf insgesamt 66.000 qm entstanden in Turm und Podiumgebäude hochwertige Büro- und Ladenflächen. Aufenthaltszonen laden zu Entspannung und Unterhaltung ein. Bei der Außengestaltung wurde die historische Umgebung des Opernplatzes mit einbezogen. Die für den Neubau gewählte Natursteinfassade korrespondiert nicht nur mit den umgebenden Gebäuden, sondern spart im Vergleich zu einer Glasfassade 20% der für die Kühlung der 42 Etagen nötigen Energie. Keine Kompromisse wurden hingegen in der Gebäudetechnik zugelassen, insbesondere im Bereich des vorbeugenden Brand- und Rauchschutzes.
Darüber hinaus konnte Novoferm auch Sonderwünsche entsprechend den baulichen und nutzerischen Anforderungen termingerecht erfüllen – einschließlich passgenau gefertigter Türabschlüsse, unterschiedlicher Verglasungen und spezieller Zugangsberechtigungen.
HOHE SICHERHEIT IM VORBEUGENDEN BRANDSCHUTZ
Neben zahlreichen Mehrzwecktüren kamen im OpernTurm vor allem Feuerschutztüren T30 und T90 in unterschiedlichen Größen und Ausführungen zum Einbau: ein- oder zweiflügelig, mit und ohne Verglasung, in Standard- und Sondergrößen. Lieferbar sind außerdem folgende Ausstattungen: Rauch- und Schallschutz, einbruchhemmend, mit Oberblenden bzw. Oberlichtern, teilweise auch in Edelstahl.



TÜREN IN SONDERGRÖSSEN JEDERZEIT MÖGLICH
Novoferm Feuerschutzabschlüsse stehen serienmäßig in vielen gängigen Abmessungen zur Verfügung – von der kleinsten Wandklappe mit 500 x 500 mm bis zur größten zweiflügeligen Tür mit 3000 x 3000 mm. Wenn die baulichen Gegebenheiten es erfordern, kann jedoch innerhalb der in der Zulassung festgelegten Abmessungen jede Sondergröße gefertigt werden – im OpernTurm z. B. Türen mit nur ca. 120 mm Höhe zum Einbau in einem abgeschrägten Servicebereich.



BERECHTIGUNGSKONZEPTE NACH MASS
Wie bei den meisten Bauobjekten mussten auch beim OpernTurm bestimmte Bereiche durch Zugangskontrollen wirksam geschützt werden – man denke nur an Server-, Schalt- und Traforäume oder die Kellerräume der einzelnen Mietparteien.
Novoferm Feuerschutztüren sind für jedes gewählte Berechtigungskonzept vorgerichtet. Dazu gehören individuelle Schließanlagen ebenso wie modernste elektronische Kontrollsysteme.



TÜRVERGLASUNG FÜR BESSEREN DURCHBLICK
Besonders in Bereichen mit Publikumsverkehr setzten Planer und Bauherren des OpernTurms auf Türen mit Verglasung. Das beugt Unfällen vor und hält den Verkehr selbst in stark frequentierten Zeiten flüssig. Generell können Novoferm Kunden unter verschiedenen Fenstergrößen und -formen sowie unterschiedlichen Glasarten wählen. Selbstverständlich muss bei Feuerschutztüren auch die Verglasung zulassungskonform sein.



FLEXIBLE NUTZUNG IST UNSERE STÄRKE
Die gewünschte Nutzung des Ensembles durch unterschiedliche Branchen, darunter solche mit Publikumsverkehr, stellt besonders hohe Anforderungen an den Brandschutz und die Gebäudetechnik.
Das gilt vor allem für die besonders neuralgischen Verkehrsflächen einschließlich der Tiefgarage mit ihren 580 Stellplätzen sowie die zahlreichen Technik- und Lagerräume.


Έχουμε προκαλέσει το ενδιαφέρον σας;
Οι πελάτες της Novoferm επωφελούνται από ένα πανελλαδικό δίκτυο πωλήσεων και εξυπηρέτησης. Βρείτε τον υπεύθυνο επικοινωνίας για την περιοχή σας εδώ και μη διστάσετε να επικοινωνήσετε μαζί μας. Θα χαρούμε να σας υποστηρίξουμε από τη φάση του σχεδιασμού. Επικοινωνήστε μαζί μας!
Θα χαρούμε να σας βοηθήσουμε.